联系我们CONTACT US
地址:海南省海口市玉沙路58号
手机:13988889999
电话:0898-88889999
邮箱:admin@eyoucms.com
查看更多
R设备展示EQUIPMENT
你的位置: 首页 > 设备展示

巴比伦艺术花园-约40-78㎡-区位-周边设施-户型展示

发布时间:2025-09-08 16:46:47  点击量:

  项目一层为底商,层高5.4米,底商是不通天然气且没有烟道的,不予许做餐饮,可为业主提供一些基本的生活配套类商业,类似便利店、茶馆等,不会打扰楼上业主居住或办公的舒适度。

  教育:周边3公里半径内已成熟发展的就有5所中小学,2所大学。离项目近的就是曲江二小,除此之外曲江政府在2018年重金引入康桥国际学校和西安德闳学校两大名校入住曲江,这两所学校虽然为私立学校,但是其名气和口碑在全国都是非常好的,距离项目也非常近。

  除了上述的学校之外,曲江大道上还有曲江一中、曲江一小等名校可供选择,还有西安曲江的科教文化板块,北侧紧邻交大、理工大两所大学,后期规划了曲江第一中学理工大校区,都将使得区域成为优质教聚集地。

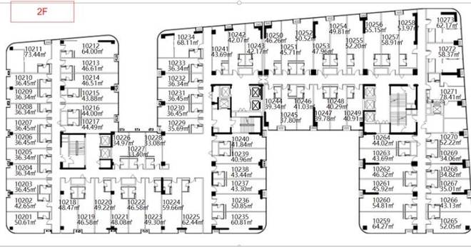
  而曲江巴比伦艺术花园36m²的大开间,这种类型的户型在项目一层中占比较高,33-65m²的都有,分布于东西南北四个朝向,户型格局上略有差距,只是开间和进深尺寸有所不同。

  卖点:不限购,可落户,玻璃幕墙,阶梯式花园,一层商业综合体,自带健身房阅读区。

  特别声明:以上内容(如有图片或视频亦包括在内)为自媒体平台“网易号”用户上传并发布,本平台仅提供信息存储服务。

  “21元点的汉堡里咋有白虫蠕动?”女子发视频反映,杭州萧山市监局介入调查

  太可怕!“住了十几年没遇到过”,上海一小区居民报警:窗户玻璃上惊现碎痕

  明年起韩国将实行“小学生家长10点上班制” 不减薪 每天减少一小时工作时间照顾子女

  卖一台新车亏1万、靠售后赚54亿“回血”,最大4S集团年报中还藏着哪些机会和隐忧?

【返回列表页】

顶部

地址:海南省海口市玉沙路58号  电话:0898-88889999 手机:13988889999
Copyright © 2012-2018 某某网站 版权所有 Powered by EyouCms ICP备案编:琼ICP备88889999号